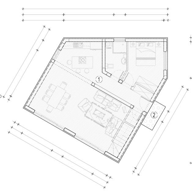
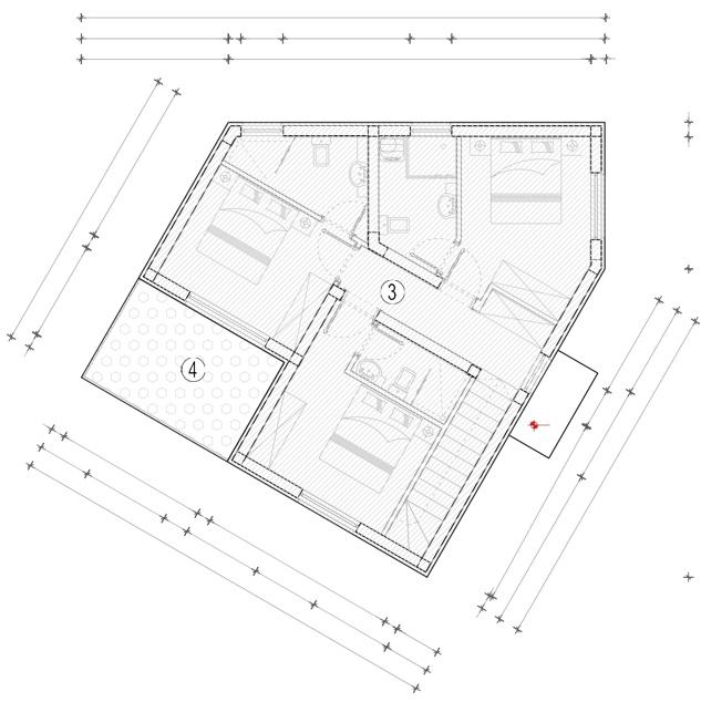
Getting Started
This villa is fully customizable, allowing the buyer to adapt the floor plan, choose construction and
finishing materials, and tailor the interiors to their personal preferences.
The property features a plot of 596 m2, a total gross villa area of 168.71 m2, and 228.49 m2 of
landscaped green space. Residents will enjoy a heated pool with an automatic telescopic canopy for
year-round use, a Jacuzzi for ultimate relaxation, and a spacious terrace with panoramic sea views.
The villa includes a private garage for 2–3 vehicles, additional parking, and a beautifully
landscaped garden complete with a children’s play area. All of this is situated in a quiet, secure
residential zone, just minutes from the sea and local marina.
