


Luksuzna vila s pogledom na more - Rogoznica
| Vrsta nekretnine: Vila |
| Tip apartmana: Prizemlje |
| Faza izgradnje: Pripremni radovi |
| Godina izgradnje: 2026 |
| Bruto površina: 168,71 m² |
| Stambena površina: 130,69 m² |
| Sobe: 5 |
| Spavaća sobe: 4 |
| Kupaonice: 4 |
| Kat: 1 |
| Balkon i vrt: Terasa i vrt |
| Garaža / Parkirno: Garaža |
| Bazen: Da |
| Pogled na more: Da |
| Udaljenost od mora: 600 m |
| Dizalo: Ne |
| WC za goste: Da |
| Podrum: Ne |
| Sustav grijanja: Klima-uređaj / grijanje na zrak |
| Pristup bez stepenica: Da |
| Mjesto: Dalmatian coast - Rogoznica |
| Položaj: Kopno |
Uvod
Ova vila nalazi se u Rogoznici, vrlo poželjnom obalnom gradu poznatom po prekrasnim plažama i opuštenom mediteranskom načinu života.
Smještena na mirnoj i privatnoj lokaciji, samo 600 metara od mora, nekretnina nudi savršenu ravnotežu između mira i jednostavnog pristupa svim sadržajima. Okružena zelenilom i smještena u osami, vila osigurava potpunu privatnost uz uživanje u otvorenom, prekrasnom pogledu na more.
Dizajnirana za udobnost i cjelogodišnji život, vila ima grijani bazen, jacuzzi i prekrasno uređen vrt koji stvara idealan prostor za opuštanje i zabavu. Nekretnina nudi pet parkirnih mjesta, uključujući garažu i dodatno vanjsko parkirno mjesto, što pruža praktičnost i za stanare i za goste.
Savršeno kao luksuzno utočište na moru ili pametna dugoročna investicija.
Preuzmi brošuru nekretnine
Villa description
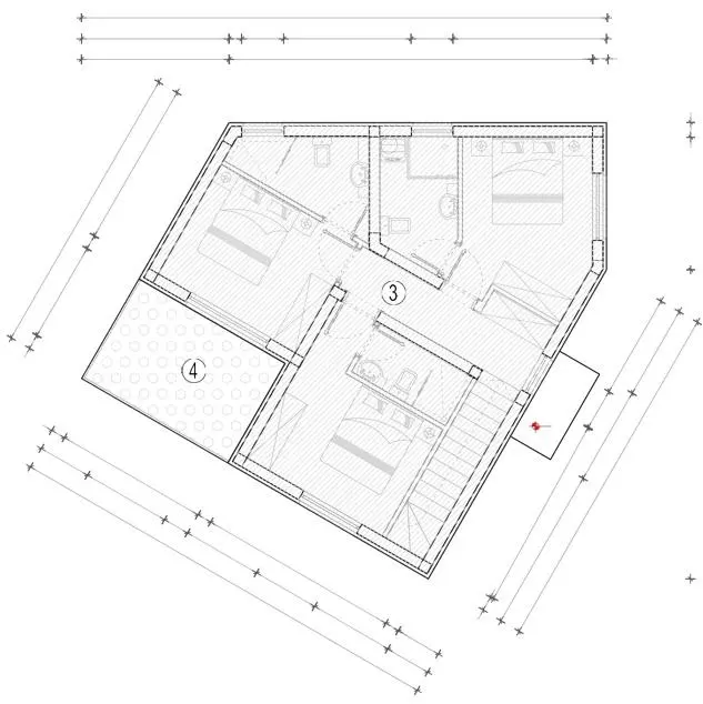
Vila ima dobro osmišljen i vrlo funkcionalan raspored s jasnom podjelom između dnevnog boravka i privatnih zona.
Ulazni prostor je kompaktan i učinkovit, osiguravajući da se ne gubi prostor, a istovremeno pruža jasnu orijentaciju pri ulasku u stan.
Glavni dnevni prostori prirodno se otvaraju prema dnevnoj zoni, dok se spavaća soba i kupaonica nalaze u mirnijim, privatnijim dijelovima vile. Iz ovog prostora stubište vodi na gornji kat.
Gornji kat je mirno utočište, osmišljeno kao privatna oaza za spavanje. U njemu se nalaze tri spavaće sobe, svaka sa svojom kupaonicom, što osigurava udobnost i privatnost svim stanarima.
Ovo zoniranje čini raspored idealnim za svakodnevni život, obiteljsku upotrebu i ugošćavanje gostiju. Aktivni prostori i mirni prostori jasno su odvojeni i ne ometaju jedno drugo.
Prilikom ulaska u nekretninu, dolazite u ulazni prostor.
Neposredno ispred, zid vizualno odvaja ulaz od kuhinje. Ovaj dizajnerski izbor drži kuhinju izvan izravnog pogleda pri ulasku, stvarajući čist, miran i dobro strukturiran prvi dojam.
Sama kuhinja dio je otvorenog plana dnevnog boravka, blagovaonice i kuhinje.
Funkcionalno je povezana s blagovaonicom i dnevnim boravkom, što je čini vrlo praktičnom za svakodnevnu upotrebu i zabavu, a istovremeno ostaje vizualno diskretna od ulaza.
Dnevni boravak je svijetao, zahvaljujući velikim staklenim stijenama koje propuštaju pregršt prirodnog dnevnog svjetlo.
Dizajniran s konceptom otvorenog plana, dnevni boravak, blagovaonica i kuhinja besprijekorno su povezani, stvarajući pravo srce stana i čineći ga idealnim za druženje i svakodnevni život.
Ovaj raspored je vrlo pogodan za ugošćavanje gostiju, jer nudi udobnost i osjećaj otvorenosti. Iz dnevnog boravka postoji direktan pristup terasi s grijanim bazenom, što pruža dodatni vanjski prostor za opuštanje i zabavu.
Vila ima ukupno četiri spavaće sobe.
Jedna spavaća soba nalazi se u prizemlju, a preostale tri su na gornjem katu. Tri spavaće sobe na gornjem katu imaju vlastitu kupaonicu, dok spavaća soba u prizemlju nema.
S mogućnošću stvaranja dodatnog prostora za spavanje u dnevnom boravku, vila može udobno smjestiti do pet zona za spavanje, što je značajna prednost za obiteljski život ili najam.
Vila ima četiri kupaonice.
Jedna je smještena u prizemlju pored kuhinje i otvorenog dnevnog boravka, savršena za svakodnevnu upotrebu. Preostale tri kupaonice nalaze se na gornjem katu, a svaka služi jednoj od tri spavaće sobe, pružajući privatnost i udobnost svim stanarima.
Kupaonice su funkcionalno dizajnirane i opremljene tušem, umivaonikom i WC-om, što osigurava udobnost i praktičnost za svakodnevnu upotrebu.
Vila se prodaje bez namještaja, što budućem vlasniku omogućuje potpunu slobodu u uređenju interijera.
Svi ključni elementi već su u potpunosti završeni:
- potpuno opremljene kupaonice,
- instalacije i tehnička infrastruktura,
- promišljen raspored prostorija,
- kvalitetni materijali i završne obrade.
Na zahtjev kupca moguće je organizirati i ugraditi namještaj – od odabira do potpune opreme, prilagođene stilu i namjeni korištenja (vlastito stanovanje ili najam).
Time se omogućuje kupnja vile u potpuno individualnoj varijanti ili kao rješenje „ključ u ruke“, bez potrebe da se kupac sam bavi opremanjem.
Vila nudi ukupno pet parkirnih mjesta na parceli od 596 m², uključujući dva garažna mjesta i tri natkrivena vanjska prostora. Ova parkirna mjesta uključena su u cijenu nekretnine i ne prodaju se zasebno.

Opis Vile
Vila se nalazi u mirnom dijelu Rogoznice, nudeći privatnost i prekrasan pogled na more, samo 600 metara od obale.
Smještena na parceli od 596 m2, nekretnina je zamišljena kao samostojeća kuća. S obzirom na to da je mikro lokacija niske gustoće naseljenosti, maksimalna privatnost i mirno životno okruženje je osigurano. Vila se odlikuje suvremenim arhitektonskim stilom s decentnim mediteranskim detaljima, kombinirajući bezvremensku eleganciju s funkcionalnim dizajnom pogodnim za cjelogodišnji život.
Izgrađena od visokokvalitetnih materijala i modernih tehničkih rješenja, vila naglašava energetsku učinkovitost, toplinsku udobnost i strukturnu izdržljivost. Posebne značajke uključuju grijani bazen, jacuzzi i uređeni vrt, stvarajući idealno okruženje za opuštanje i život na otvorenom.
S pet parkirnih mjesta na posjedu, uključujući dva garažna mjesta i tri natkrivena vanjska prostora, vila osigurava maksimalnu udobnost za stanovnike i posjetitelje, dodajući dodatnu razinu udobnosti i praktičnosti svakodnevnom životu.
Ova vila predstavlja rijetku priliku za kupce koji traže luksuzno utočište na moru ili vrhunsku investiciju na vrlo traženoj obalnoj lokaciji s trajnom vrijednošću.
Vila
Etaže
Parkirnih mjesta
od obalne linije
Vremenska linija razvoja projekta
Vila ima valjanu građevinsku dozvolu, a gradilište je službeno registrirano.
Nekretnina se prodaje po cijeni od 750.000,00 € za potpuno dovršenu i ograđenu vilu po sistemu "ključ u ruke" (bez uvjeta avansa ili faznog plaćanja).
Vila se prodaje po principu "ključ u ruke" i uključuje namještaj rađen po mjeri i visokokvalitetne materijale za završnu obradu u cijeloj kući.
Za kupce koji se odluče za avansno i fazno plaćanje tijekom gradnje, dostupna je povlaštena cijena od 590.000,00 € za potpuno dovršenu i namještenu nekretninu.
Detaljan tijek izgradnje prikazan je u vremenskoj liniji u nastavku.
Faza planiranja ✔️
Faza ishođenja dozvola ✔️
Pripremni radovi ✔️
Gruba gradnja 🔨 (u tijeku)
Projekt je uspješno ušao u fazu grube gradnje.
U ovoj fazi završeno je približno 20 % ukupnih građevinskih radova, što potvrđuje stabilan napredak prema planu.
Završni / unutarnji radovi ⏳
Završetak izgradnje ⏳
Spremno za primopredaju / Ključ u ruke ⏳
O lokaciji
-
Mirno primorsko mjesto u središnjoj Dalmaciji, južno od Šibenika
-
Poznato po opuštenoj atmosferi, kristalno čistom moru i prirodnom okruženju
-
Dom jedne od najpoznatijih i dobro zaštićenih jahtnih luka na Jadranu
-
Stambeno područje s malom gustoćom izgradnje i ograničenom novom gradnjom
-
Pogodno za privatno stanovanje, drugi dom i kvalitetan način odmora
-
Autentičan dalmatinski karakter s očuvanim lokalnim tradicijama
-
Mediteranska klima s dugim, toplim ljetima i blagim zimama
-
Mirno primorsko mjesto u središnjoj Dalmaciji, južno od Šibenika
Broj stanovnika
~ 2,300Šibenik Grad
~ 35 kmZračna luka Split (SPU)
~ 30 kmVezovi za jahte
~ 460Barovi i restorani
25+Sunčanih dana godišnje
~ 64%Ljetna temperatura
+26 / +32 °CTuristički posjeti godišnje
+100.000
ROGOZNICA
Dalmacija, Hrvatska
Potpuna podrška — od ideje i zemljišta do ključeva i završetka kupoprodaje.
Transparentno, profesionalno i pouzdano.
Gradnja na zemljištu klijenta
Projektiramo i gradimo vile, stambene kuće i višestambene zgrade na zemljištu klijenata — u potpunosti prilagođene individualnim potrebama i ciljevima.
Pronalaženje zemljišta i podrška razvoju projekta
Pomažemo u pronalasku i kupnji građevinskih zemljišta, uključujući analizu isplativosti i planiranje projekta.
Ključ u ruke — od ideje do primopredaje
Realiziramo projekte po principu „ključ u ruke“ — od koncepta, dokumentacije i dozvola do gradnje, završnih radova i primopredaje objekta.
Investicijsko i razvojno savjetovanje
Pružamo stručno savjetovanje privatnim investitorima, uključujući procjenu isplativosti, optimizaciju troškova i dugoročno planiranje vrijednosti.
Prodaja nekretnina iz vlastite gradnje
Prodajemo nekretnine iz vlastite gradnje — koje sami projektiramo, gradimo i dovodimo do završne faze, uz potpunu kontrolu kvalitete i procesa.
Podrška pri kupnji, razgledavanja i pravna pomoć
Pratimo kupce kroz cijeli proces kupnje — od organizacije razgledavanja i obilazaka na lokaciji do notarskih postupaka i pravnih formalnosti, posebno za strane kupce. Rezervirane nekretnine moguće je osobno razgledati na licu mjesta, što osigurava transparentnost i sigurnost prije konačne odluke.
Zašto ova nekretnina ima smisla
Stvorena za uživanje danas — i očuvanje vrijednosti sutra.
Uložite u vlastiti odmor
Umjesto rezerviranja hotela ili smještaja, uživajte u vlastitom stanu kad god poželite. Vi odlučujete kako će izgledati vaš dom za odmor — od namještaja i materijala do svakog detalja koji vam je važan. Stvorite osobno utočište uz more i vraćajte se kad god to odgovara vašem životnom stilu. Dugoročno gledano, to može značajno smanjiti troškove odmora.
Neka vaša nekretnina radi za vas
Kada stan ne koristite za vlastiti boravak, može ostvarivati dodatne prihode putem kratkoročnog ili sezonskog najma. Zahvaljujući atraktivnoj lokaciji i snažnoj turističkoj potražnji, vaša nekretnina ima potencijal da se s vremenom djelomično ili u potpunosti sama financira. Profesionalne usluge upravljanja omogućuju vam iznajmljivanje bez svakodnevnog angažmana. Na taj način vaša nekretnina postaje spoj životnog stila i pametne financijske imovine.
Opipljiva imovina na vrhunskoj lokaciji
Nekretnine na vrhunskim obalnim lokacijama ubrajaju se među najotpornije dugoročne oblike ulaganja. Ograničena ponuda, stabilna potražnja i jedinstvena privlačnost jadranske obale pomažu u očuvanju vrijednosti vaše investicije tijekom vremena. Za razliku od financijskih proizvoda, ovo je opipljiva imovina koju možete koristiti, u njoj uživati i prenijeti na sljedeću generaciju. U Hrvatskoj je prihode od najma u pravilu moguće ostvarivati kao privatna osoba, bez potrebe za osnivanjem tvrtke, uz poštivanje lokalnih propisa. Ona objedinjuje emocionalnu vrijednost i dugoročnu stabilnost.
Spremni ste napraviti sljedeći korak?
Odaberite opciju koja najbolje odgovara vašim ciljevima — ulaganje ili kupnja ovog stana.
Rezervirajte ovaj stan
Osigurajte ovaj stan uplatom rezervacijskog pologa od €5.000.
Iznos rezervacije bit će uračunat u kupoprodajnu cijenu te omogućuje privremenu rezervaciju nekretnine dok mirno dovršavate postupak kupnje.
Rezervirajte ovaj stan
Investicijske mogućnosti
Saznajte više o mogućnostima ulaganja u nekretnine, dostupnim formatima i načinima sudjelovanja. Predstavit ćemo vam rješenja koja najbolje odgovaraju vašim ciljevima, budžetu i investicijskom horizontu.